2m29 - Sosnowiec, Zagórze - 3 pokoje!

Mieszkanie na sprzedaż Sosnowiec, Zagórze

Opis nieruchomości

Oferta bezpośrednia – biuro sprzedaży mieszkań Dewelopera ZMIROB!    

KAMERALNE OSIEDLE W OTOCZENIU DRZEW, Z PRYWATNYM STAWEM.

III ETAP INWESTYCJI – budynek nr 2


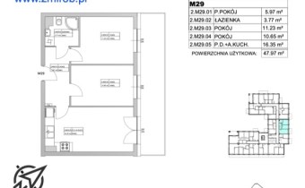
2M29 - mieszkanie o powierzchni 47,97 m2, 2 piętro, 3 pokoje, taras - 14,65 m2.

W III etapie zostanie oddany do użytku budynek nr 2, w którym znajduje się 49 mieszkań o metrażach od 29 m2 do 74 m2 z balkonem, tarasem lub ogródkiem. Termin oddania do użytkowania przewidziany jest na IV kwartał 2025 r. Mieszkania wykończone zostaną w standardzie deweloperskim.

Komfort
•    duże balkony, tarasy oraz ogródki
•    rolety zewnętrzne w mieszkaniach na parterze
•    cichobieżna winda
•    zero barier architektonicznych
•    udogodnienia dla niepełnosprawnych
•    fantastyczne położenie - w  otoczeniu zieleni, daleko od zgiełku ulicznego
•    świetna lokalizacja - szybki wylot na trasę 94, blisko niezbędnej infrastruktury

Wygoda
•    ogrzewanie miejskie podłogowe
•    woda ciepła z sieci (brak gazu)
•    niskie opłaty miesięczne
•    komórka lokatorska dostępna dla każdego mieszkańca
•    garaż podziemny i/lub garaż indywidualny
•    bezpłatne naziemne miejsca postojowe

O inwestycji
Apartamenty Stary Browar to niezwykle kameralna inwestycja w dzielnicy Zagórze w Sosnowcu przy ulicy ks. Jerzego Popiełuszki. Nowoczesna architektura, komfortowe układy wnętrz oraz doskonałe doświetlenie pomieszczeń zapewniają przyszłym mieszkańcom wysoki poziom wygody każdego dnia. Osiedle Stary Browar składa się z czterech nowoczesnych apartamentowców, z których jeden jest już zamieszkały. Każdy z budynków będzie posiadał komórki lokatorskie, windę oraz indywidualne garaże na poziomie 0, a dodatkowo w budynkach 1 i 2 powstaną miejsca postojowe w garażu podziemnym. Teren nowo powstającego osiedla jest spokojną enklawą, otoczoną drzewami i terenami zielonymi, co daje dodatkowe poczucie intymności. Na terenie inwestycji znajduje się niewielki staw, który został ogrodzony i pięknie zagospodarowany.

Świetna lokalizacja
W pobliżu szpital, liczne sklepy, restauracje, placówki edukacyjne.
•    Najbliższy punkt komunikacyjny - Zagórze Centrum – 450 m
•    Tuż obok osiedla przedszkole „Akademia Pana Kleksa”
•    Żłobek „Kraina Odkrywcy” - 3 min pieszo
•    SP nr 9 - 500 m
•    LO nr IX - 400 m
•    Lasek Zagórski - 1,5 km
•    Siłownia Xtreme Fitness - 700 m
•    Park Środula - Górka Środulska oraz Multipark (stadion zimowy, stadion piłkarski, hala sportowa) - 2 km

Stąd wszędzie jest blisko!


O deweloperze
Zmirob to firma, która działa na rynku w oparciu o 30-letnie doświadczenie, zarówno jako wykonawca generalny, jak i podwykonawca. Realizuje inwestycję z własnych środków.

Oficjalna strona internetowa inwestycji deweloperskiej: www.starybrowar.sosnowiec.pl

Umowa na wyłączność.
Kupujący nie płaci PCC ani prowizji!

Nieruchomość obecnie nie posiada certyfikatu energetycznego.

Szczegóły dotyczące inwestyc
ji udzieli:

Biuro sprzedaży mieszkań dewelopera ZMIROB
Dominika +48 519 595 672
Sosnowiec, ul. ks. Jerzego Popiełuszki 30A
Marzena Świerkosz +48 519 595 674
Biuro Nieruchomości ASTON oddział Tychy, ul. Bocheńskiego 19

Udzielamy BEZPŁATNYCH porad w zakresie nieruchomości. Pomagamy również przy uzyskaniu KREDYTU hipotecznego. Niespodzianka dla naszych klientów - rabaty w sklepach budowlanych i projekt łazienki lub kuchni za 1 zł. Zapraszamy do naszych oddziałów:

  • Tychy, ul. Ojca Bocheńskiego 19
  • Katowice, ul. Rolna 46

Treść niniejszego ogłoszenia nie stanowi oferty handlowej w rozumieniu Kodeksu Cywilnego.

Nota prawna

Opis oferty zawarty na stronie internetowej sporządzany jest na podstawie oględzin nieruchomości oraz informacji uzyskanych od właściciela, może podlegać aktualizacji i nie stanowi oferty określonej w art. 66 i następnych K.C.

Szczegóły oferty

Symbol oferty ATW-MS-4286
Powierzchnia 47,97 m²
Liczba pokoi 3
Piętro 2
Rodzaj budynku apartamentowiec
Standard
Liczba pięter w budynku 3
Stan lokalu Do wykończenia
Okna nowe PCV
Balkon jest
Rok budowy 2025
Winda tak
Liczba wind 1
Przystosowania dla niepełnosprawnych tak

Lokalizacja

Kalkulator kredytowy

PLN
%
Wysokość raty

Kalkulator kosztów

PLN
PLN
PLN
PLN
PLN
PLN
%
PLN
Podatek od czynności cywilno-prawnych
Taksa notarialna (opłata notarialna)
VAT od taksy notarialnej (opłaty notarialnej)
Wniosek do WKW
VAT od wniosku do WKW
Prowizja agencji nieruchomości
VAT od prowizji agencji nieruchomości
Wypisy aktu notarialnego - około
RAZEM (cena + opłaty)

Uwaga: mogą wystąpić dodatkowe opłaty za założenie księgi wieczystej oraz ustanowienie hipoteki.

Podobne oferty

rezerwacja
video
mieszkanie na sprzedaż - Sosnowiec, Zagórze

Sosnowiec, Zagórze - STAW NA OSIEDLU

mieszkanie na sprzedaż Sosnowiec, Zagórze
3 pokoje 60,59 m2 0,02 zł/m2
rezerwacja
video
mieszkanie na sprzedaż - Sosnowiec, Zagórze

2m6 - Sosnowiec, Zagórze - mieszkanie z ogródkiem

mieszkanie na sprzedaż Sosnowiec, Zagórze
3 pokoje 52,33 m2 0,02 zł/m2
rezerwacja
video
mieszkanie na sprzedaż - Sosnowiec, Zagórze

2m34 - Sosnowiec, Zagórze - przytulne mieszkanie

mieszkanie na sprzedaż Sosnowiec, Zagórze
3 pokoje 52,33 m2 0,02 zł/m2
rezerwacja
video
mieszkanie na sprzedaż - Sosnowiec, Zagórze

2m43 - Sosnowiec, Zagórze - 3 pokoje

mieszkanie na sprzedaż Sosnowiec, Zagórze
3 pokoje 47,67 m2 0,02 zł/m2

Napisz do nas

Proszę wypełnić to pole
Proszę wypełnić to pole
Proszę wypełnić to pole
Proszę wypełnić to pole
Trwa wysyłanie...

Ta strona wykorzystuje pliki cookies w celach statystycznych oraz w celu dostosowania naszych serwisów do indywidualnych potrzeb klientów. Zmiany ustawień dotyczących plików cookie można dokonać w dowolnej chwili modyfikując ustawienia przeglądarki. Korzystanie z tej strony bez zmian ustawień dotyczących cookies oznacza, że będą one zapisane w pamięci urządzenia.

rozumiem