Oferta bezpośrednia – biuro sprzedaży mieszkań Dewelopera ZMIROB!
KAMERALNE OSIEDLE W OTOCZENIU DRZEW, Z PRYWATNYM STAWEM.
III ETAP INWESTYCJI – budynek nr 2
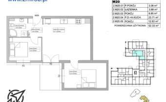
2M20 - mieszkanie o powierzchni 52,33 m2, 1 piętro, 3 pokoje, balkon.
W III etapie zostanie oddany do użytku budynek nr 2, w którym znajduje się 49 mieszkań o metrażach od 29 m2 do 74 m2 z balkonem, tarasem lub ogródkiem. Termin oddania do użytkowania przewidziany jest na IV kwartał 2025 r. Mieszkania wykończone zostaną w standardzie deweloperskim.
Komfort
• duże balkony, tarasy oraz ogródki
• rolety zewnętrzne w mieszkaniach na parterze
• cichobieżna winda
• zero barier architektonicznych
• udogodnienia dla niepełnosprawnych
• fantastyczne położenie - w otoczeniu zieleni, daleko od zgiełku ulicznego
• świetna lokalizacja - szybki wylot na trasę 94, blisko niezbędnej infrastruktury
Wygoda
• ogrzewanie miejskie podłogowe
• woda ciepła z sieci (brak gazu)
• niskie opłaty miesięczne
• komórka lokatorska dostępna dla każdego mieszkańca
• garaż podziemny i/lub garaż indywidualny
• bezpłatne naziemne miejsca postojowe
O inwestycji
Apartamenty Stary Browar to niezwykle kameralna inwestycja w dzielnicy Zagórze w Sosnowcu przy ulicy ks. Jerzego Popiełuszki. Nowoczesna architektura, komfortowe układy wnętrz oraz doskonałe doświetlenie pomieszczeń zapewniają przyszłym mieszkańcom wysoki poziom wygody każdego dnia. Osiedle Stary Browar składa się z czterech nowoczesnych apartamentowców, z których jeden jest już zamieszkały. Każdy z budynków będzie posiadał komórki lokatorskie, windę oraz indywidualne garaże na poziomie 0, a dodatkowo w budynkach 1 i 2 powstaną miejsca postojowe w garażu podziemnym. Teren nowo powstającego osiedla jest spokojną enklawą, otoczoną drzewami i terenami zielonymi, co daje dodatkowe poczucie intymności. Na terenie inwestycji znajduje się niewielki staw, który został ogrodzony i pięknie zagospodarowany.
Świetna lokalizacja
W pobliżu szpital, liczne sklepy, restauracje, placówki edukacyjne.
• Najbliższy punkt komunikacyjny - Zagórze Centrum – 450 m
• Tuż obok osiedla przedszkole „Akademia Pana Kleksa”
• Żłobek „Kraina Odkrywcy” - 3 min pieszo
• SP nr 9 - 500 m
• LO nr IX - 400 m
• Lasek Zagórski - 1,5 km
• Siłownia Xtreme Fitness - 700 m
• Park Środula - Górka Środulska oraz Multipark (stadion zimowy, stadion piłkarski, hala sportowa) - 2 km
Stąd wszędzie jest blisko!
O deweloperze
Zmirob to firma, która działa na rynku w oparciu o 30-letnie doświadczenie, zarówno jako wykonawca generalny, jak i podwykonawca. Realizuje inwestycję z własnych środków.
Oficjalna strona internetowa inwestycji deweloperskiej: www.starybrowar.sosnowiec.pl
Umowa na wyłączność.
Kupujący nie płaci PCC ani prowizji!
Nieruchomość obecnie nie posiada certyfikatu energetycznego.
Szczegóły dotyczące inwestycji udzieli:
Biuro sprzedaży mieszkań dewelopera ZMIROB
Dominika +48 519 595 672
Sosnowiec, ul. ks. Jerzego Popiełuszki 30A
Marzena Świerkosz +48 519 595 674
Biuro Nieruchomości ASTON oddział Tychy, ul. Bocheńskiego 19
Udzielamy BEZPŁATNYCH porad w zakresie nieruchomości. Pomagamy również przy uzyskaniu KREDYTU hipotecznego. Niespodzianka dla naszych klientów - rabaty w sklepach budowlanych i projekt łazienki lub kuchni za 1 zł. Zapraszamy do naszych oddziałów:
Treść niniejszego ogłoszenia nie stanowi oferty handlowej w rozumieniu Kodeksu Cywilnego.




Uwaga: mogą wystąpić dodatkowe opłaty za założenie księgi wieczystej oraz ustanowienie hipoteki.